Přejít k hlavnímu obsahu

Poděbradská blata, a.s.

17. 2. 2021

Potřeba pokrytí významné zemědělské oblasti Veselska, Třeboňska a severního Českobudějovicka službami velkokapacitního skladu zemědělských komodit, využití pozemků ve vlastnictví ZZN Pelhřimov o celkové výměře 17.283 m2, přímá návaznost dotčených pozemků na stávající areál, ve kterém ZZN Pelhřimov realizuje obchod s průmyslovými hnojivy a agrochemickými přípravky a v neposlední řadě bezprostřední návaznost lokality na nově vybudovanou dálnici D3. To byly hlavní aspekty, které vedení společnosti ZZN Pelhřimov, v roce 2019, přiměly zabývat se myšlenkou výstavby kapacitního skladu zemědělských komodit v Jižních Čechách v lokalitě Dynín. V průběhu roku 2020 byly provedeny projektové studie, potřebné průzkumy dotčených pozemků, studie ekonomické návratnosti apod. Výsledkem byl investiční záměr výstavby nového sila, představený na konci roku 2020.

ZZN Pelhřimov

Leden 2021 se stal „startovacím bodem“ celého projektu, kdy byl v první polovině celý záměr schválen a veškeré práce tím dostaly symbolickou zelenou. V přibližném termínu do června 2020 by mělo být uzavřeno řízení s orgány státní správy a vydáno společné stavební povolení a územní rozhodnutí. Zároveň v této době proběhne výběrové řízení na generálního dodavatele. Předpokládaným termínem zahájení samotné výstavby je červenec 2021. Předpoklad dokončení celého projektu a uvedení zařízení do provozu je červen-červenec 2022 – sezóna žní.

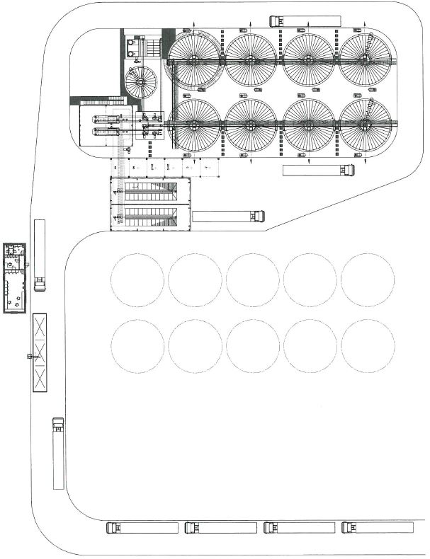
Projektovaná kapacita skladu je max. 14.000 t zemědělských komodit, investiční náklady jsou odhadovány ve výši 110 mil. Kč. Součástí skladu bude 8 ks skladovacích ocelových sil, kompletní linka pro příjem a posklizňovou úpravu komodit, jejíž součástí budou dva příjmové koše, čistička zrnin, sušárna, kompletní technologické cesty, akumulační zásobník, expediční zásobníky. Součástí celého areálu je následně budova příjmové laboratoře, velínu a zázemí pro obsluhu, mostní váha, vzorkovač, trafostanice, přípojka zemního plynu, příjezdové a obslužné komunikace. Celoroční obsluhu areálu budou zajišťovat dvě osoby – silomistr + vážná / laborantka.

ZZN Pelhřimov - projekt silo

DALŠÍ ZPRÁVY